The STRAW TRANSITION

Since India’s Green Revolution, a monoculture of rice and wheat has dominated the agriculture of India and the livelihoods of farmers. Deeply embedded in the nation’s food security, wheat and rice monocultures generate millions of tons of food and byproducts. These grains are used in critical food security program that annually provides food for over half of India’s enormous population. The country’s dependence on wheat and rice for these food programs has led to a cyclical monoculture:

High-yield seed varieties are genetically modified to be more productive and resistant to pests while demanding increased amounts of water and chemical fertilizers. When harvested, the residual straw is frequently burned in place, a practice that degrades soil health and accelerates the demand for stronger fertilizers and pesticides. This dependency reinforces the need for increasingly GMO’d seed varieties, all of which is draining India’s already overexploited groundwater reserves.

In addition, the government sets the grain at low prices, locking farmers into a vicious loop of diminishing returns and environmental degradation—a system that is both unsustainable and must change.

A critical point of contention lies in the cultivation of rice in northwestern India, where much of the crop is produced for distribution to other parts of the country. There is growing consensus that rice cultivation in this region must be significantly curtailed or phased out altogether, given the alarming rate at which local groundwater resources are being depleted.

And so, faced with the dilemmas of crop burning and impending desertification from the grain monoculture, India must look for other means to provide food for its food security while shifting away from its grain monoculture.

However, the reality is that to provide food for the millions of people reliant on the grain, this existing grain monoculture remains a necessity for the next 10-20 years.

My proposal is partnered with this reality. It exists in the necessary transition period from the grain monocultures, to whatever future agricultural solution there is, be it cereals or horticulture. This transition period will see that straw is not burned but utilized in the construction of their lives.

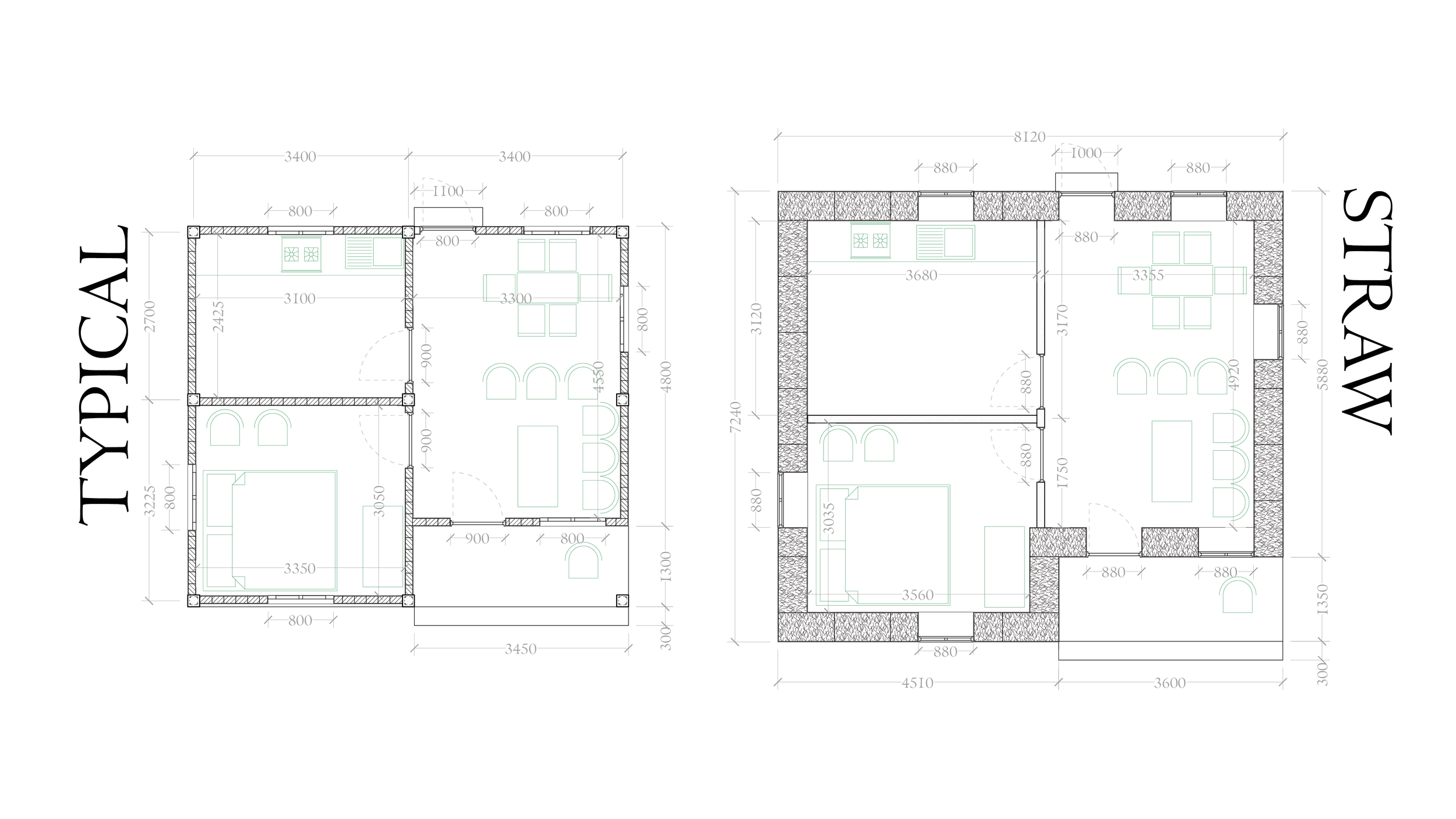
Plan, First Floor

ELEVATIONS

Elevation, North

SECTIONS

DETAILS

WALL SECTION DETAILS

ENLARGED DETAILS

Details

ENLARGED PLANS AND INTERIOR ELEVATIONS

KITCHEN

BATHROOM AND LAUNDRY ROOM

CHILDREN’s ROOM